Americana Series
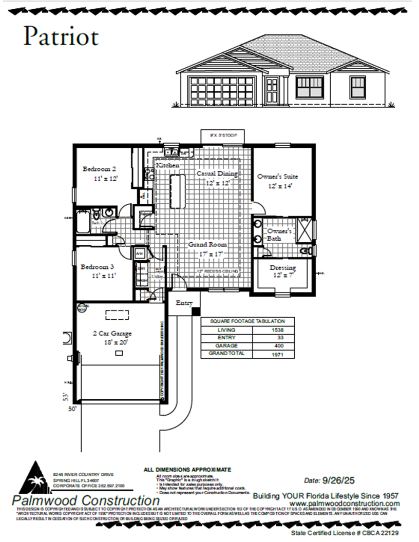
Patriot
1432 SQ. FT Living Space
3 Bedroom - 2 Bath
The Patriot is a 1,432 sq. ft., 3-bedroom, 2-bath home in our Americana Series—designed for comfort, functionality, and timeless style. With an open-concept layout, spacious living areas, and thoughtful details throughout, this home offers the perfect blend of affordability and modern living for families, retirees, or first-time buyers.













