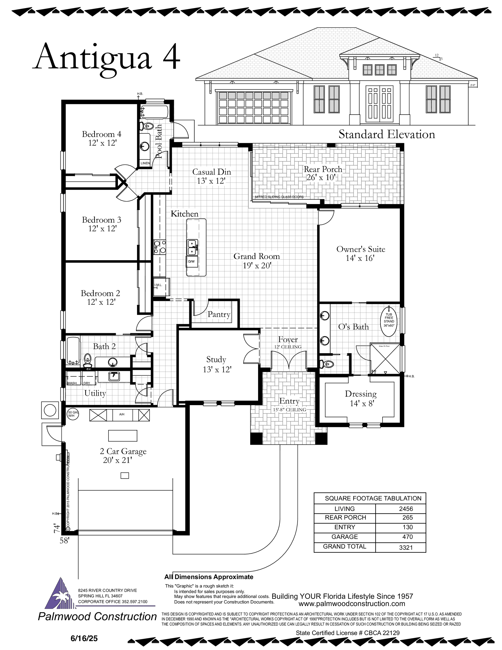
Antigua 4
2456 SQ. FT Living Space
4 Bedroom - 3 Bath
The Antigua 4 in our Estate Series is a refined 4-bedroom, 3-bath home that offers 2,456 square feet of thoughtfully designed living space. From the moment you step inside, you’re welcomed by an open-concept floor plan that blends luxury with livability. Elegant finishes, expansive gathering areas, and designer-appointed details make this home ideal for families, entertainers, or anyone seeking the best of Florida living. With ample space to personalize and a layout designed for both comfort and sophistication, the Antigua 4 delivers a custom home experience that elevates everyday living.










