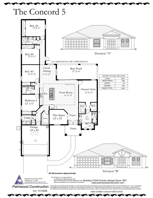
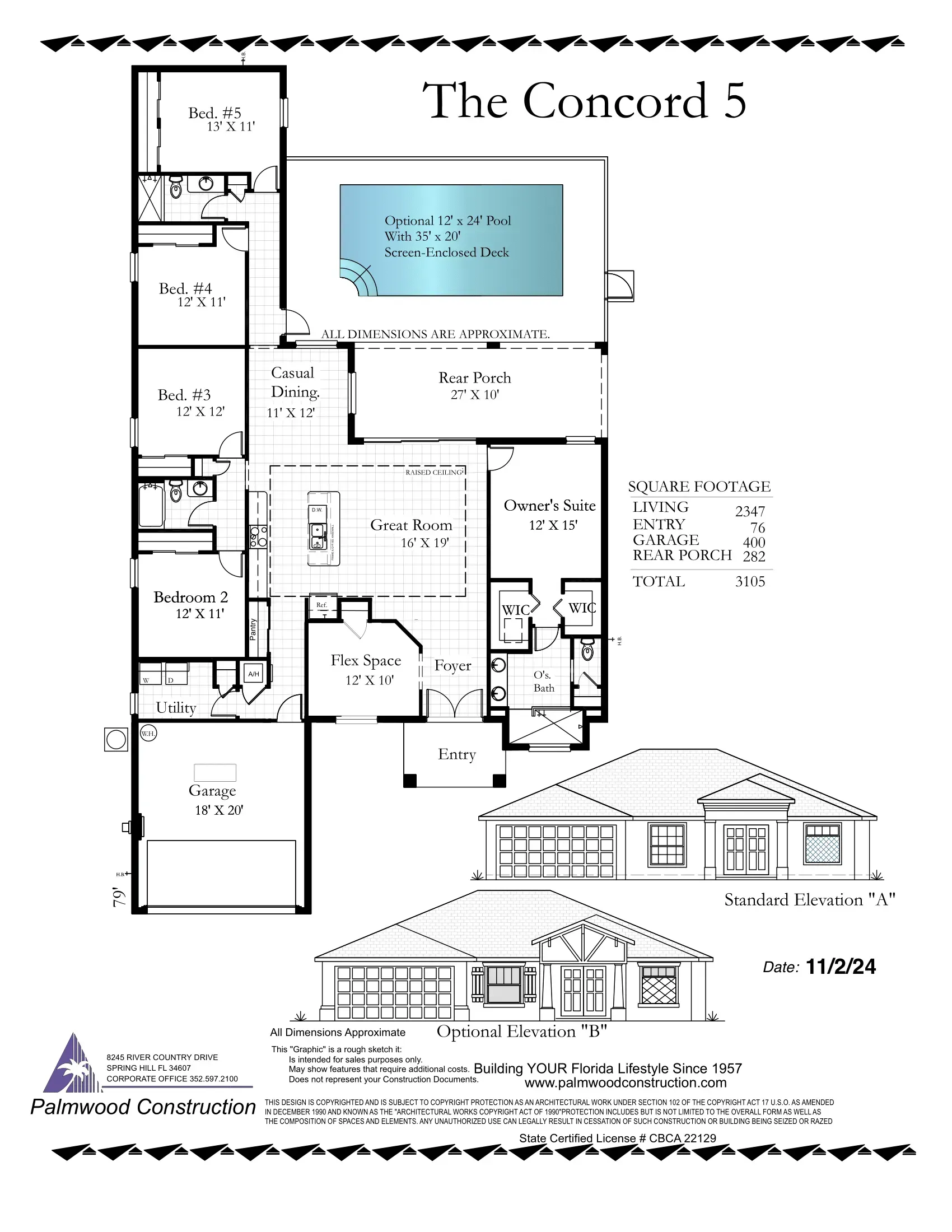
Concord 5
2347 SQ. FT. Living Space
5 Bedroom 3 Bath
The Concord 5 is built for families who need space—and lots of it. With 2,347 square feet, 5 bedrooms, and 3 full baths, this Americana Series home offers room for everyone without sacrificing style or flow. The open-concept design makes gathering easy, while the split-bedroom layout provides privacy and flexibility for guests, teens, or multigenerational living. Whether you're hosting the holidays or enjoying quiet nights in, the Concord 5 is your foundation for comfortable, connected Florida living.

















