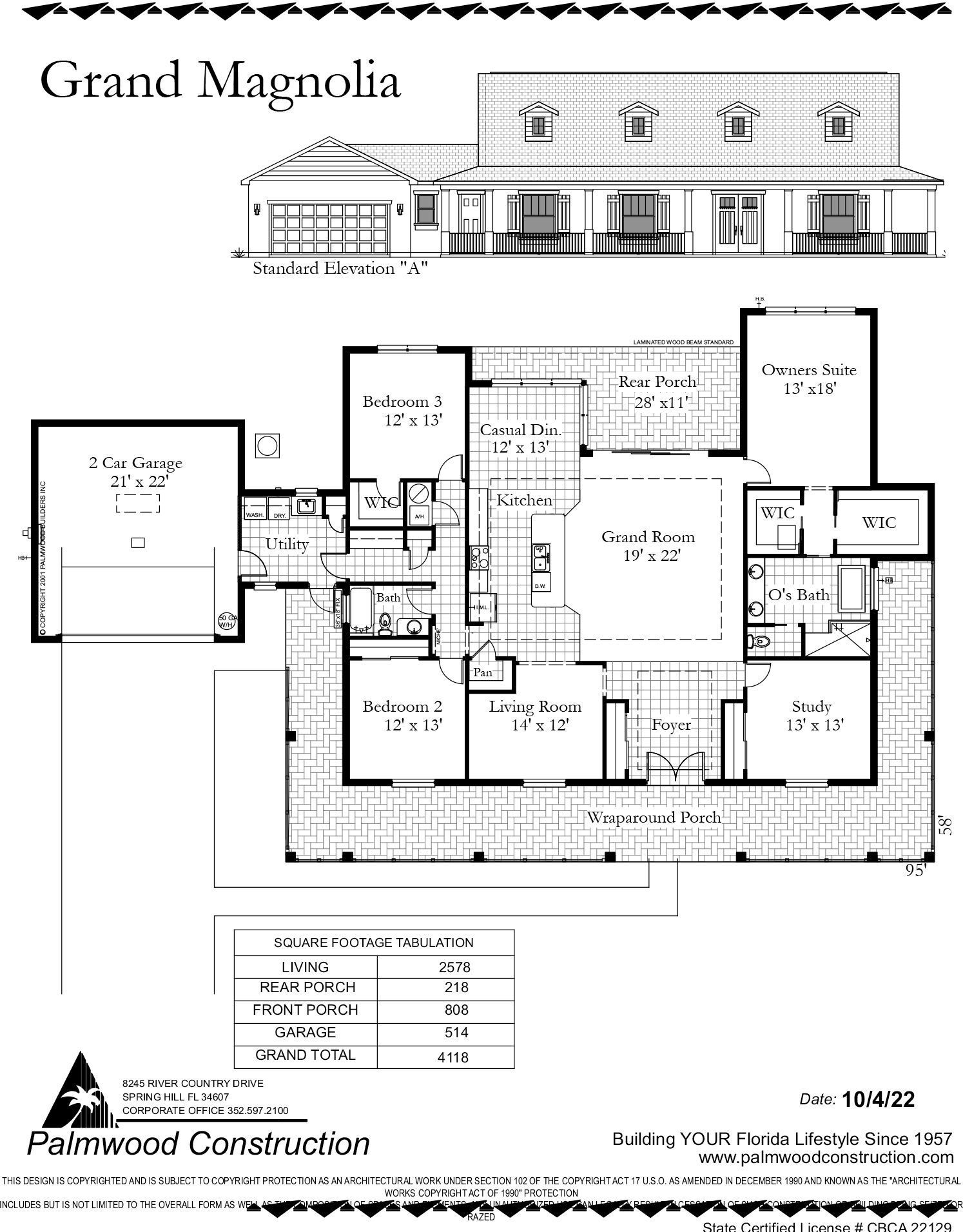
Grand Magnolia
2558 SQ. FT Living Space
3 Bedroom - 2 Bath
Refined design meets comfortable living in the Grand Magnolia. With 2,578 square feet of well-planned space, this 3-bedroom, 2-bath home from Palmwood’s Estate Series offers upscale living with timeless appeal—perfect for Florida families, retirees, or professionals looking to elevate their lifestyle.
This elegant floor plan features open-concept living areas, a luxurious owner’s suite, and carefully selected finishes throughout. Whether you're entertaining, relaxing, or working from home, the Grand Magnolia adapts effortlessly to the way you live.










