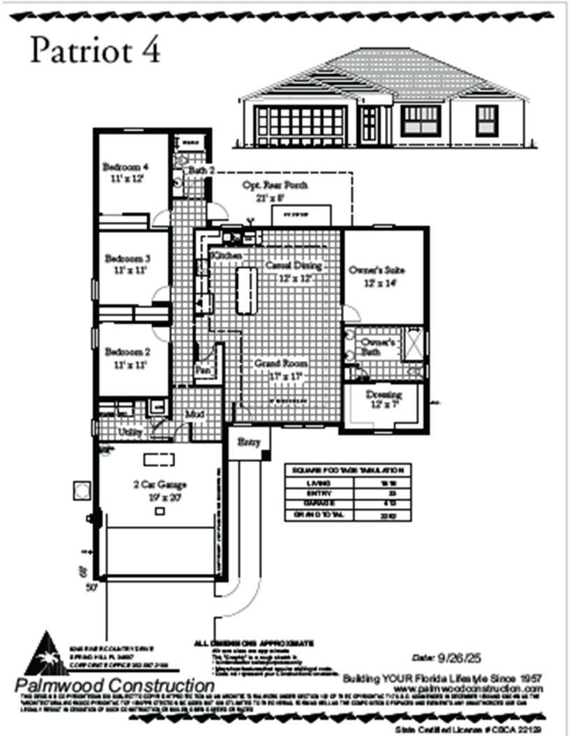
Patriot 4
1689 SQ. FT. Living Space
4 Bedroom 3 Bath
The Patriot 4 is all about practical space with patriotic spirit. This 4-bedroom, 2-bath home in our Americana Series offers a smart, open layout designed for real life—roomy enough for growing families, guests, or a dedicated home office. With a seamless flow from kitchen to living area, stylish finishes, and just the right balance of comfort and functionality, the Patriot 4 is your everyday haven, built to fit the Florida lifestyle with ease.













