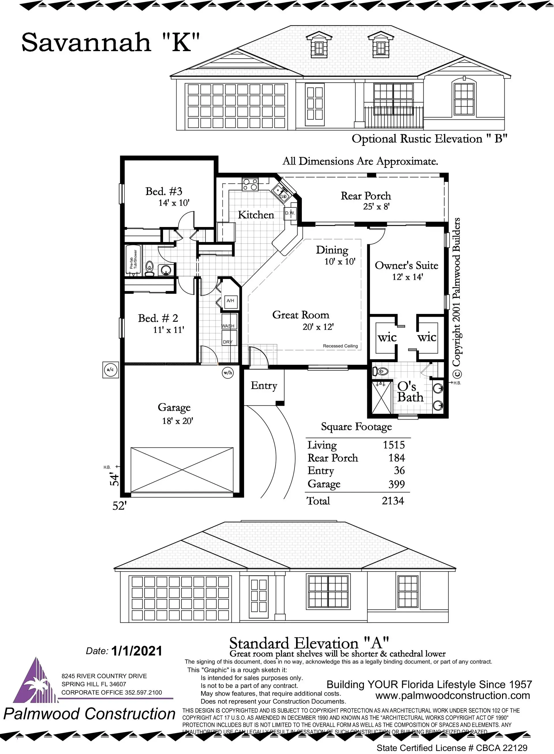
Savannah K
1515 SQ. FT. Living Space
3 Bedroom 2 Bath
The Savannah K is a 1,515 sq. ft., 3-bedroom, 2-bath home in our Americana Series—offering a smart layout with plenty of room to live, relax, and entertain. Designed with comfort and efficiency in mind, this home features open-concept living, stylish finishes, and versatile spaces perfect for families, retirees, or anyone seeking a well-balanced Florida lifestyle;















